Elevators  
       
 
Traction MRL.
   
       
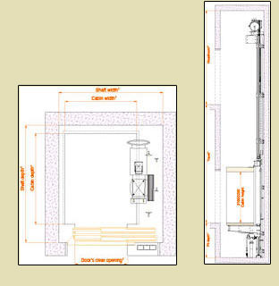
  The Traction MRL Solution

Mistral is the ideal Traction Machine Room-Less Lift (MPL) for up to 630 kg rated load.
It uses a VVVF driven (or AC2) gearbox, manufactured by Alberto Sassi.
The gearbox is easily placed in the top of the shaft with a special push–cart.
The special design of cantilever-style elevator and the 1:1 roping facilitates easy installation.
The superior quality of the parts and the gearbox guarantee a noiseless and very smooth ride. Mistral is a high value Traction MRL, fully customized to your needs!

The Advantages of Mistral

  • 4 weeks ex-works delivery time
  • Ease of installation and maintenance
  • Type Examination Certificate according to Directive 95/16 EC.
  • Mechanically operated emergency release
  • Pre-assembled electrical installation (pre-wiring)
  • 1600 mm x 1800 mm shaft for 630kg load accommodating 800 mm or 900 mm door opening
  • Simple idea, Simple implementation
  • Kleemann Flexibility, Guarantee and Suppor
 
       
  The Mistral complete lift is offered with.

  • Guaranteed compatibility with all components
  • Detailed installation, operation and maintenance manuals
  • Functional packing design
  • Automatic doors with VVVF operator
  • Side opening and central opening doors, available in various finishings
  • Landing doors also as per DIN 18091
  • Various attractive cabin designs available
  • Large variety of COPs, LOPs
 
       
  Summary Technical Data:    
       
 

 

Mistral 450

Mistral 630

 

Rated load (kg)

450kg

630kg

Persons

6

8

Roping

1:1

1:1

Max.Travel (m)

45

45

Number of stops

16

16

Max. Car speed (m/sec)

1

1

Cabin sling weight (kg)

300

300

Max. cabin weight
(including cabin door) (kg)

550

650

Cabin width (mm)

1100

1100

Cabin depth (mm)

1300

1400

Car Cabin height (mm)

2100 / 2200

2100/2200

Max . entrances

3

3

Door width (mm)

800 / 900

800 / 900

Door height (mm)

2000 / 2100

2000 / 2100

Shaft width (mm)

1600

1600

Shaft depth (mm)

1700

1800

Min. pit depth (mm)

1200

1200

Min. headroom (mm)

3600 / 3700

3600 / 3700

Cabin guide rails

T89x62x16

T89x62x16

Cabin DBG

1000

1000

Counter weight guide rails

T50x50x5

T50x50x5

Counter weight's DBG

400

400

Max. vertical distance between
guide brackets (mm)

2000

2000

Gearbox

Alberto Sassi/Leo

Alberto Sassi/Leo

Traction sheave (mm)

Ø 400

Ø 400

Starts per hour

AC2: 180 / VVVF: 240

AC2: 180 / VVVF: 240

Ropes (mm)

4 x Ø 10

5 x Ø 10

 
       
   
       
  The machine room-less lift, specially designed
for high-rise buildings and heavy loads
 
       
  The Traction MRL Solution:

ATLAS is the perfect solution for up to 1000 kg Traction Machine Room-Less Lifts. It uses the gearless machine ZETATOP, manufactured by one of the most experienced companies in the field, ZIEHL - ABEGG, Germany . The design for cantilever style lift and for suspension 1:1 combines ease of installation comparable only with hydraulic lifts, and comfort and low noise levels of gearless machines.

The maximum speed of the system reaches 1,6 m/sec, meeting the requirements of high-rise buildings with heavy traffic.

The Advantages of Mistral:

  • Type Examination Certificate according to Directive 95/16 EC
  • Special design for easy installation of the drive
  • Pre-assembled, electrical installation (pre- wiring)
  • Cantilever sling allowing flexible entrance choices
  • Speed up to 1.6m/sec
  • Load up to 1000kg
 
  Summary Technical Data:    
       
 

Rated load

1000 Kg

Max travel

45 m / 16 stops

Car entrances

3

Max speed

1,6 m/sec

Min Pit Depth

1300 mm

Min. Headroom

3600 mm / 3700 mm

Cabin Height (Internal)

2100 mm / 2200 mm

Acting

1:1

Doors

telescopic or central opening

Motor Power

Max 11Kw

Control

Down collective,
Full collective selective,
Duplex

Max Cabin Weight, including doors

1250 Kg

 
       
 
 
       
 
Atlas
   
Atlas Basic
   
Atlas Super Gigas
 
   
   
   
   
       
     
   
     
 

 
* Products
 
   
   
     
 
| | | |
Copyright UFTAS © All rights reserved
Designed & Developed by
EgySol